شراء الخدمة الآن
شراء الخدمة

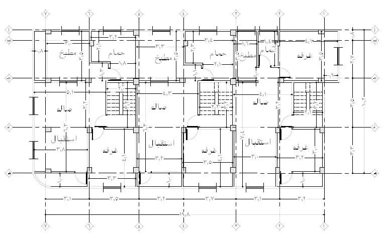
لديك تصميم معماري او انشائي وتريد عمل Shop Drawing للبنود لتسليمها للقائميه علي التنفيذ في الموقع لتجنب الاخطاء وكذلك لتقليل الهالك كل ما عليك فعله هو ارسال الملف بصيغه DWG وسيتم عمل Shop Drawing كامل لكافه البنود المطلوبه بدقه عاليه سواء معماريه او انشائيه - تكلفه عمل Shop Drawing للوحه الواحده 15 دولار لمساحه 100 متر٢ ف اقل مع زياده 5 دولار لكل 100 متر٢ زائده في المساحه - يتم تسليم الملف بصيغه DWG موضح به جميع البنود في خلال 2 يوم

شراء الخدمة الآن
شارك
بطاقة الخدمة
التقييمات
سعر الخدمة
15.00 $
مدة التسليم
2 أيام
بائع الخدمة
Mohamed Abobakr
Mohamed Abobakr
مهندس تصميم
شراء الخدمة الآن
شارك
مركز المساعدة