شراء الخدمة الآن
شراء الخدمة

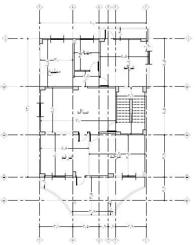
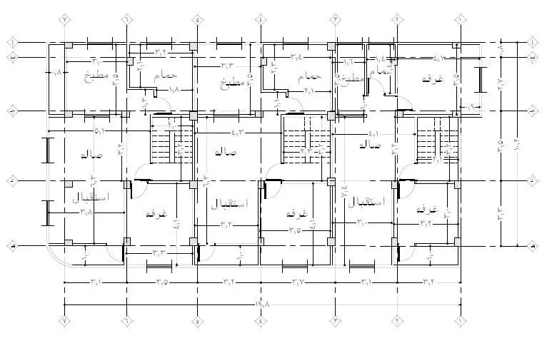
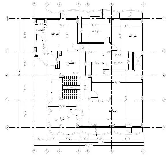
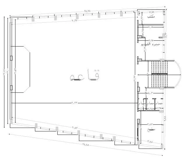
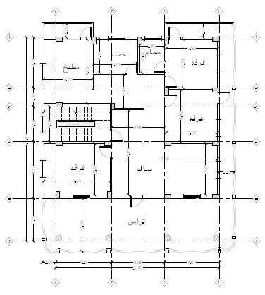
- لديك قطعه ارض وتحتاج لعمل تصميم معماري - تحتاج الي عمل تعديل معماري في بيتك وترغب في مقترحات واستغلال افضل للمساحات - تريد عمل تصميم معماري جديد ومختلف عن التقليدي كل ما عليك فعله هو ارسال البيانات اللازمه مثل الابعاد وحدود الارض وسيتم عمل التصميمات المعماريه باستخدام برنامج AutoCad 2D واشراك العميل منذ بدايه التصميم للوصول لافضل النتائج وتحقيق المطلوب وعرضها لاختيار الافضل منها لتوفير الراحه والخصوصيه والاستغلال الامثل للمساحات التصميم طبقا لاشتراطات الكود المصري للبناء والتشييد - تكلفه عمل تصميم معماري 30 دولار للدور الواحد لقطعه مساحه 100 متر٢ مع زياده 10 دولار لكل 100 متر٢ اخري من المساحه علي ان يتم ارسال البيانات المطلوبه بصوره واضحه مع كتابه جميع الابعاد المطلوبه ويتم استلام التصميم النهائي خلال 2 يوم ويتم ارسال التصميم للعميل بصيغه PDF وكذلك DWG - كما يتوافر لدينا عمل حصر كميات لجميع البنود بتكلفه 15 دولار لكل 100 متر٢ للوحه الواحده مع زياده 5 دولار لكل 100 متر٢ اضافيه من المساحه التسليم خلال 2 يوم - يتوافر لدينا عمل Shop Drawing لجميع البنود بتكلفه 15 دولار لكل 100 متر٢ للوحه الواحده مع زياده 5 دولار لكل 100 متر٢ اضافيه من المساحه التسليم خلال 2 يوم - يتوافر لدينا عمل تصميم انشائي بتكلفه 40 دولار لكل 100 متر٢ مع زياده 20 دولار لكل 100 متر٢ اضافيه من المساحه التسليم خلال 4 ايام

شراء الخدمة الآن
شارك
بطاقة الخدمة
التقييمات
سعر الخدمة
30.00 $
مدة التسليم
2 أيام
بائع الخدمة
Mohamed Abobakr
Mohamed Abobakr
تخصص غير محدد
شراء الخدمة الآن
شارك
مركز المساعدة