شراء الخدمة الآن
شراء الخدمة

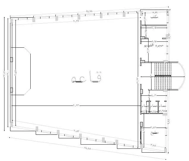
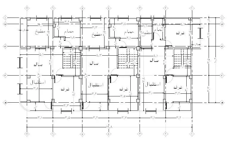
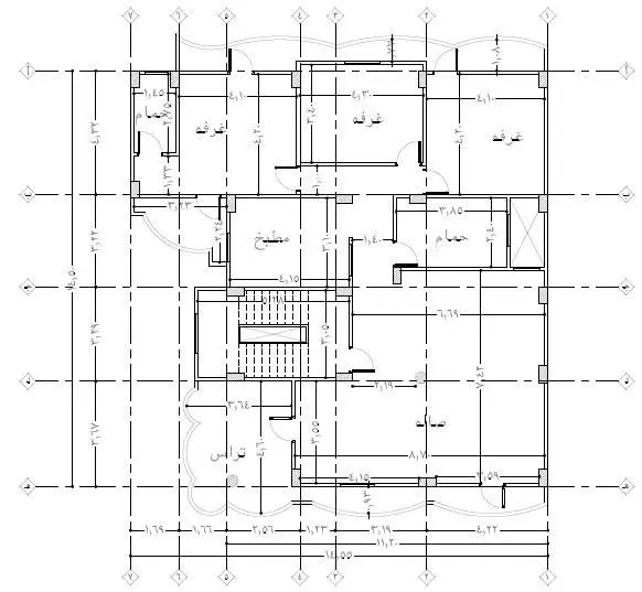
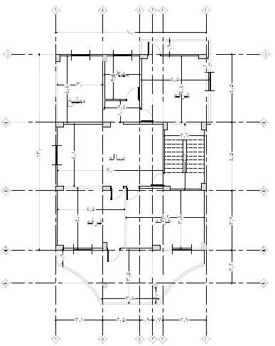
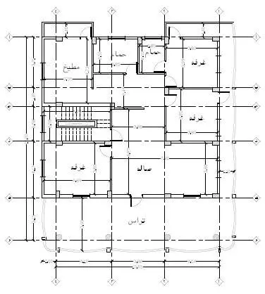
لديك تصميم او رسمه معماريه وتريد عمل الملف والتصميم الانشائي الخاص بها تريد عمل سقف وتريد تصميم انشائي امن واقتصادي ... كل ما عليك فعله هو ارسال الرسمه بصيغه DWG وسيتم عمل التصميم الانشائي باستخدام برامج التصميم الانشائي مثل Safe و Etabs للخروج بافضل تصميم انشائي يوفر الامان بصوره اقتصاديه " التصميم طبقا لاشتراطات الكود المصري للبناء والتشييد " - تكلفه عمل التصميم الانشائي 40 دولار للدور الواحد لقطعه مساحه 100 متر٢ مع زياده 20 دولار لكل 100 متر٢ اخري من المساحه بشرط ارسال المعماري بصيغه DWG ويتم استلام التصميم النهائي خلال 4 ايام - في حاله عدم توفر المعماري بصيغه DWG يتم ارساله بصوره واضحه لرسمه من جديد بتكلفه 15 دولار لكل 100 متر٢ و 5 دولار لكل 100 متر٢ زائده من المساحه ويتم استلام التصميم النهائي خلال 5 ايام - في حاله عدم توافر تصميم معماري يتم ارسال الابعاد للمنزل او للقطعه بصوره واضحه ويتم عمل التصميم المعماري اولا واختيار المناسب للعميل بتكلفه 30 دولار لكل 100 متر٢ من المساحه و 10 دولار لكل 100 متر٢ اضافيه من المساحه ويتم استلام التصميم النهائي خلال 6 ايام " يتم ارسال جميع اللوحات للعميل علي هيئه PDF وكذلك بصيغه DWG " - كما يتوافر لدينا عمل حصر كميات لجميع البنود بتكلفه 15 دولار لكل 100 متر٢ للوحه الواحده مع زياده 5 دولار لكل 100 متر٢ اضافيه من المساحه التسليم خلال 2 يوم - يتوافر لدينا عمل Shop Drawing لجميع البنود بتكلفه 15 دولار لكل 100 متر٢ للوحه الواحده مع زياده 5 دولار لكل 100 متر٢ اضافيه من المساحه التسليم خلال 2 يوم

شراء الخدمة الآن
شارك
بطاقة الخدمة
التقييمات
سعر الخدمة
40.00 $
مدة التسليم
4 أيام
بائع الخدمة
Mohamed Abobakr
Mohamed Abobakr
تخصص غير محدد
شراء الخدمة الآن
شارك
مركز المساعدة