شراء الخدمة الآن
شراء الخدمة

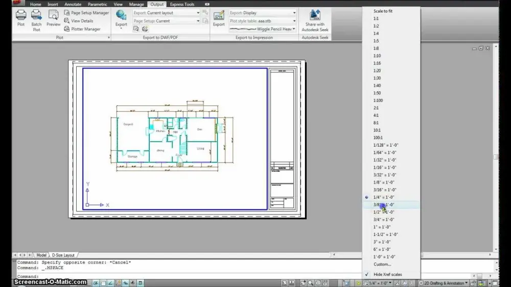
أقدّم خدمة تحويل رسومات AutoCAD إلى لوحات جاهزة للطباعة باحترافية عالية، تشمل إعداد Layouts بالمقياس وحجم الورق المطلوب، ومعالجة المخططات الكبيرة باستخدام Match Line وRotation وViewport Clipping، وضبط اللايرات عبر Freezing، مع إعداد ملف CTB مخصص (Pen Assignment)، وتصميم Title Block بخصائص Attributes، وإضافة Legend وKeymap لتصبح اللوحات جاهزة للطباعة بصيغة PDF بدقة هندسية عالية. ما الذي ستحصل عليه من خدمتي؟ تحويل حتى 50 لوحة AutoCAD من ملفات العمل (Model Space) إلى Layouts احترافية جاهزة للطباعة وفق المقياس المطلوب وحجم الورق المحدد (A0 – A4). معالجة المخططات الكبيرة التي تتطلب Match Line وRotation وViewport Clipping لضمان وضوح التفاصيل ودقة التوزيع. ضبط اللايرات داخل الـViewports باستخدام Freezing وغيرها من ادوات التحكم بالطبقات لإخفاء أو إظهار العناصر حسب الحاجة. إعداد ملف CTB مخصص (Pen Assignment) لضبط سماكات وألوان الطباعة بما يناسب نوع المشروع. تصميم Title Block احترافي يتضمن Attributes تعبأ تلقائيًا من البيانات، مع إمكانية تخصيصه حسب هوية المكتب. إضافة Legend وKeymap وتوحيد رموز الاتجاه (North Arrow) وجميع العناصر المساعدة للطباعة. إخراج جميع اللوحات بصيغة PDF عالية الجودة جاهزة للطباعة أو التسليم. باختصار: ستحصل على 50 لوحة CAD احترافية جاهزة للطباعة، منظمة، دقيقة، وتُظهر عملك بأعلى معايير العرض الهندسي.

شراء الخدمة الآن
شارك
بطاقة الخدمة
التقييمات
سعر الخدمة
50.00 $
مدة التسليم
1 أيام
بائع الخدمة
شراء الخدمة الآن
شارك
مركز المساعدة