شراء الخدمة الآن
شراء الخدمة

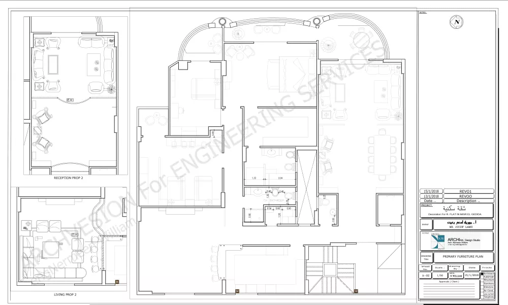
مهندسة معمارية بخبرة تتجاوز 15 عامًا في إعداد الرسومات التنفيذية والإخراج المعماري، أقدم لك خدمة إضافة الأبعاد الهندسية (Dimensions) والأثاث التوضيحي (Furniture Blocks) داخل ملفات AutoCAD الخاصة بك، بما يضمن: وضوح المخططات. سهولة قراءتها وفهمها. جاهزيتها للعرض أو الطباعة أو المشاركة مع العملاء. الخدمة مثالية للطلاب، المكاتب الهندسية، والمقاولين الراغبين في عرض رسومات منظمة واحترافية. ما ستحصل عليه ملف DWG منظم يحتوي على الأبعاد والأثاث التوضيحي لمخطط بمساحة 50م2 مقابل خدمة. إخراج احترافي ودقيق يُبرز تفاصيل المشروع. إضافة أبعاد وأثاث لمخطط بمساحة حتى 150م² 15 دولار | 2 يوم التطويرات الإضافية نسخة PDF جاهزة للعرض أو الطباعة لمساحة 50م2 مقابل5$ | 1 يوم إضافة أبعاد وأثاث لمخطط إضافي بمساحة 150م² 15 دولار | 2 يوم إخراج ملون (Colored Presentation) للمخطط لمساحة 50م2 10 دولار | 2 يوم تنظيم الطبقات (Layers) وتنسيق الملف كاملًا 20 دولار | 2 يوم إضافة أثاث تفصيلي مخصص (حسب رغبة العميل) لمساحة 50م2 15 دولار | 2 يوم

شراء الخدمة الآن
شارك
بطاقة الخدمة
التقييمات
سعر الخدمة
5.00 $
مدة التسليم
2 أيام
بائع الخدمة
Nermeen Willa
Nermeen Willa
مهندسة معمارية
شراء الخدمة الآن
شارك
مركز المساعدة