شراء الخدمة الآن
شراء الخدمة

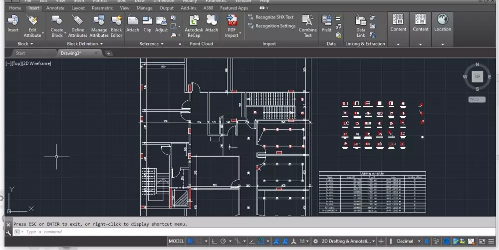
سأبدل مخططك من صيغة pdf إلى dwg للعمل عليه ببرنامج AutoCAD و ذلك بدقة و احترافية دون تأخير. لدي خبرة في العمل على المخططات الهندسية و خاصة الكهربائية باستخدام برنامج AutoCAD . الخدمة تتضمن صفحة pdf واحدة - لا أقبل الرسم اليدوي.

شراء الخدمة الآن
شارك
بطاقة الخدمة
التقييمات
سعر الخدمة
5.00 $
مدة التسليم
1 أيام
بائع الخدمة
Magda El
Magda El
مهندسة و مترجمة
شراء الخدمة الآن
شارك
مركز المساعدة