شراء الخدمة الآن

تحويل أي صورة أو رسم يدوي إلى بلان أوتوكاد CAD بدقة احترافية

شراء الخدمة

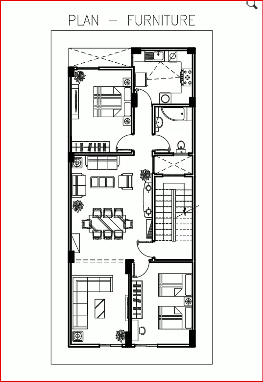
هل لديك صورة بلان مرسومة يدويًا أو لقطة من مخطط معماري قديم؟ أستطيع تحويل أي صورة، مخطط أو رسم يدوي إلى ملف AutoCAD دقيق ومنظم، بصيغة DWG قابل للتعديل، مع مراعاة المقاسات والأبعاد المطلوبة. 🔹 مميزات الخدمة: تحويل صورة أو مخطط يدوي إلى بلان أوتوكاد CAD احترافي التنظيم داخل ليرات Layers استخدام الوحدات الصحيحة (متر / سم حسب المطلوب) تسليم الملف بصيغة DWG PDF جاهز للطباعة إمكانية رسم الحوائط، الأبواب، النوافذ، الفرش، والأبعاد يبدأ من 10 دولار – مثلاً من 10$ للبلانات الصغيرة تبدا من 80 متر )

شراء الخدمة الآن
شارك
بطاقة الخدمة
التقييمات
سعر الخدمة
10.00 $
مدة التسليم
1 أيام
بائع الخدمة
Eng Eso
Eng Eso
مهندسة معمارية
شراء الخدمة الآن
شارك
مركز المساعدة