شراء الخدمة الآن
شراء الخدمة

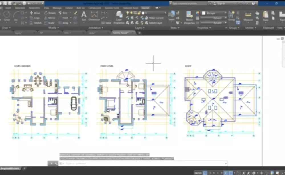
السلام عليكم معكم المهندس بشر _خبرة اكثر من سنتين بمجال الرسم باستخدام الاوتكاد _بالاضافة لبرامج هندسية اخرى *اقدم لكم بهذه الخدمة _رسم مخططات ومساقط وسحب مقاطع او اي رسم معماري بسرعة وجودة واتقان _اضافة فرش وليرات وابعاد _امكانية تعديل على اى ملف اوتكاد _تتم المتابعة مع العميل للوصول للنتيجة المطلوبة _التعديلات المسموح بها (4) تعديلات بعد التسليم الاولى _تسلم الخدمة عشكل صور JPG او ملف DWG او ملف PDF السعر 5 دولار مقابل كل رسم مساحته 300 متر مربع مدة تسليم الخدمة يوم من الطلب وتختلف المدة باختلاف حجم العمل جودة وسرعة واتقان لا تتردد بالطلب

شراء الخدمة الآن
مهارات البائع
شارك
بطاقة الخدمة
التقييمات
سعر الخدمة
5.00 $
مدة التسليم
1 أيام
بائع الخدمة
Besher Shwehna
Besher Shwehna
مصمم معماري
شراء الخدمة الآن
شارك
مركز المساعدة