شراء الخدمة الآن
شراء الخدمة

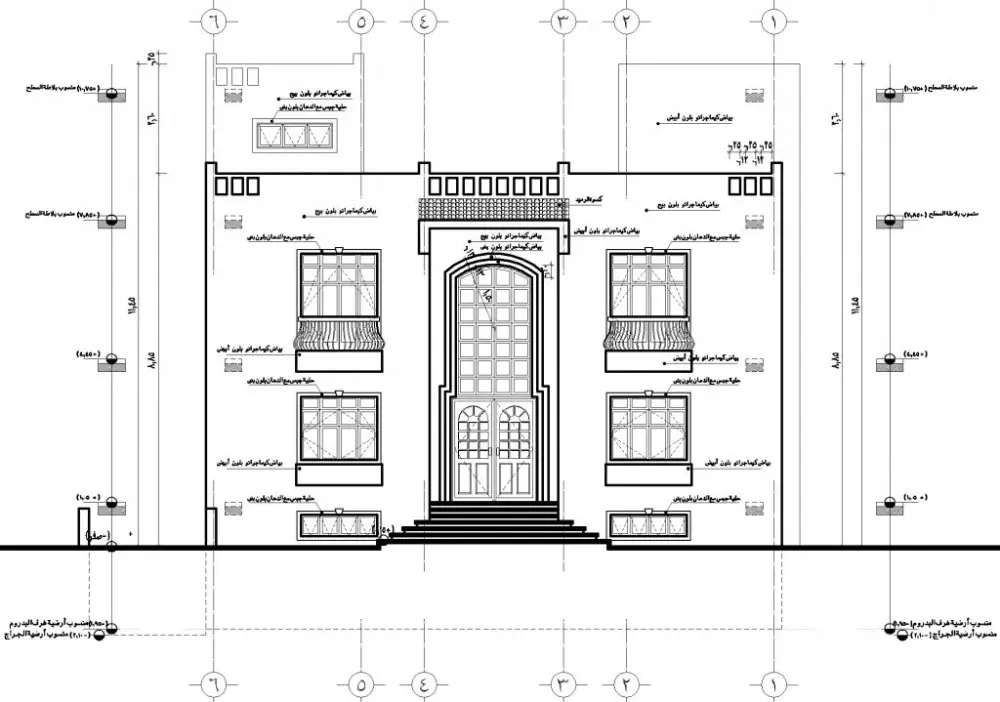
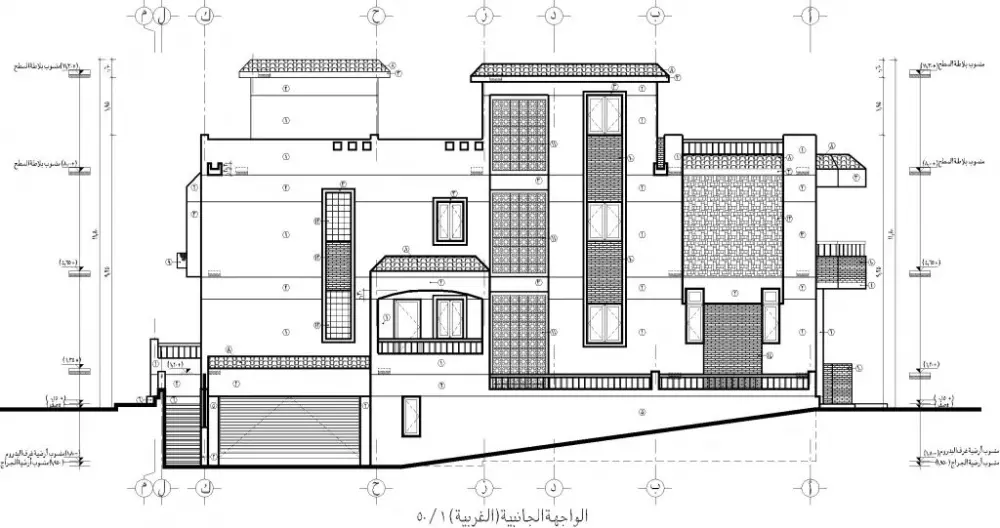
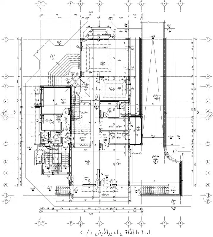
تصميم معماري ورسومات تنفيذيه بواسطة الريفيت والاتوكاد مع استخراج الرسومات التنفيذيه ورسومات الشوب دروينج واستخراج فيديوهات انيميشن المبني مع الريندر للوصول إلي lod 400 الحصول علي صور ريندر ذات جوده عاليه 600pixels الواجهات وكذلك قطاعات وجداول الحصر يتم الحصول علي حوالي 5 صور ريندر عالي الجوده مع كتله ثلاثية الأبعاد وكذلك5 لوحات رسومات تنفيذية

شراء الخدمة الآن
شارك
بطاقة الخدمة
التقييمات
سعر الخدمة
20.00 $
مدة التسليم
4 أيام
بائع الخدمة
Kariman Mosa
Kariman Mosa
مهندسه معماريه
شراء الخدمة الآن
شارك
مركز المساعدة