شراء الخدمة الآن
شراء الخدمة الخدمة غير متاحة حالياً

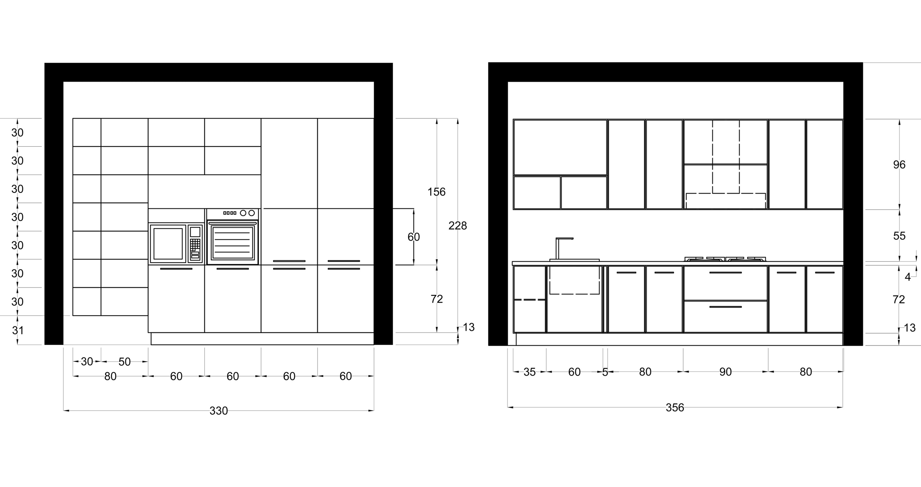
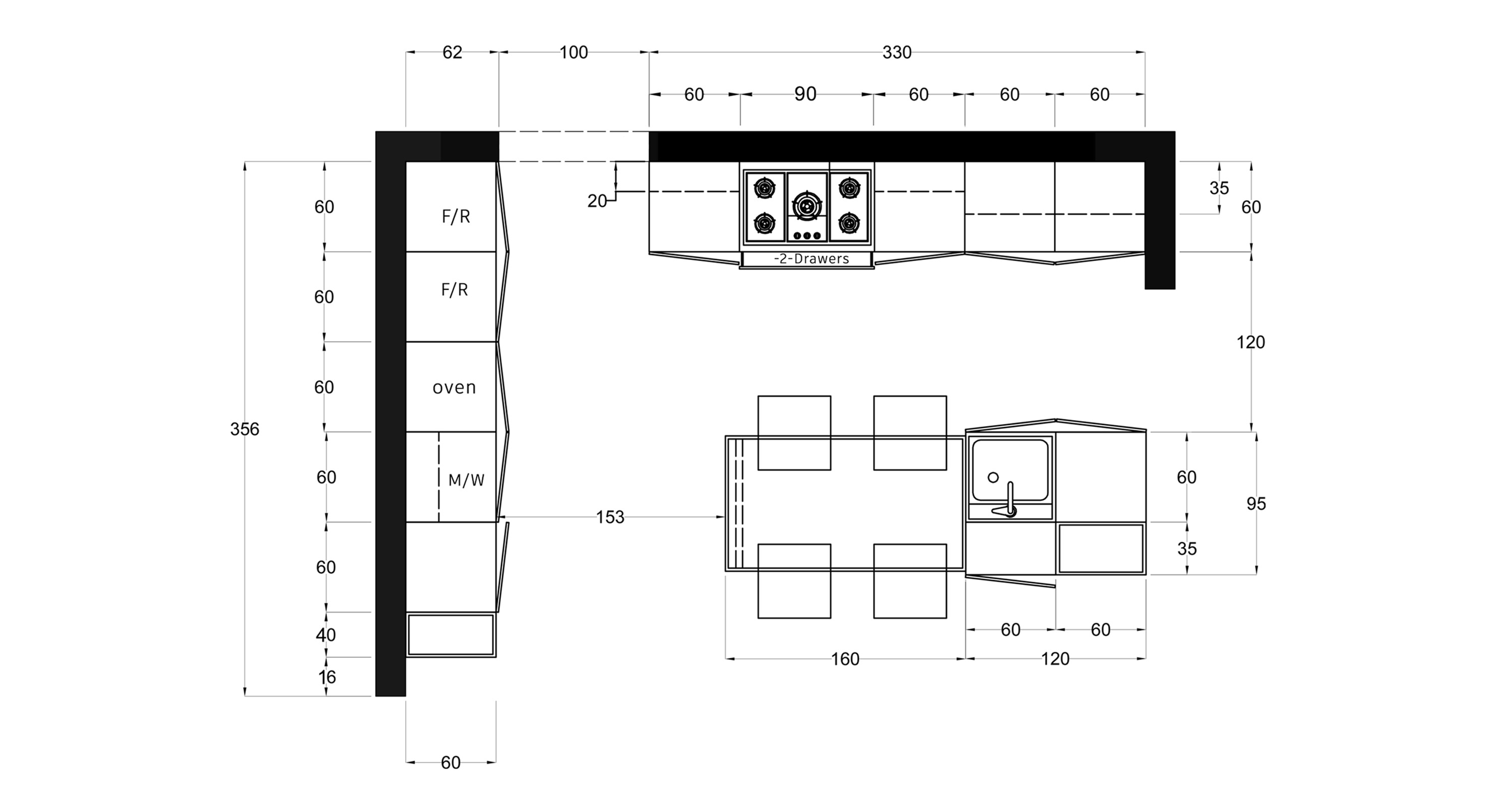
دراسة وتنفيذ مخطط (2D) يوضح توزيع خزانات (كابينات) المطبخ بــ 5$ فقط. لتحقيق افضل استغلال لمساحة مطبخك والمحافظة ايضا على الجانب الجمالي للمطبخ . ما الذي ستحصل عليه عند طلب هذه الخدمة ؟ - مخطط (2D) يوضح تصميم مطبخك وتوزيع خزانات المطبخ بكافة التفاصيل والابعاد الضرورية. - دراسة شاملة لمساحة المطبخ لتحديد افضل توزيع يُلبي متطلباتكم. - سوف تحصل على ملف PDF قابل للطباعة مع صور عالية الدقة Full HD للمخطط. - مدة التسليم [يومان] من طلب الخدمة . - اكبر مساحة مسموحة لهذه الخدمة هي (30)م٢ . المطلوب من حضرتك هو تزويدي بالتالي : - مقاسات الفراغ (المطبخ). - صور للمطبخ على الواقع .

شراء الخدمة الآن
شارك
بطاقة الخدمة
التقييمات
سعر الخدمة
5.00 $
مدة التسليم
2 أيام
بائع الخدمة
احمد البياتي
احمد البياتي
تصميم وأعمال فنية
شراء الخدمة الآن
شارك
مركز المساعدة