شراء الخدمة الآن

تصميم لوحات تنفيذية(شوب دروينج) لكافة المشاريع

شراء الخدمة

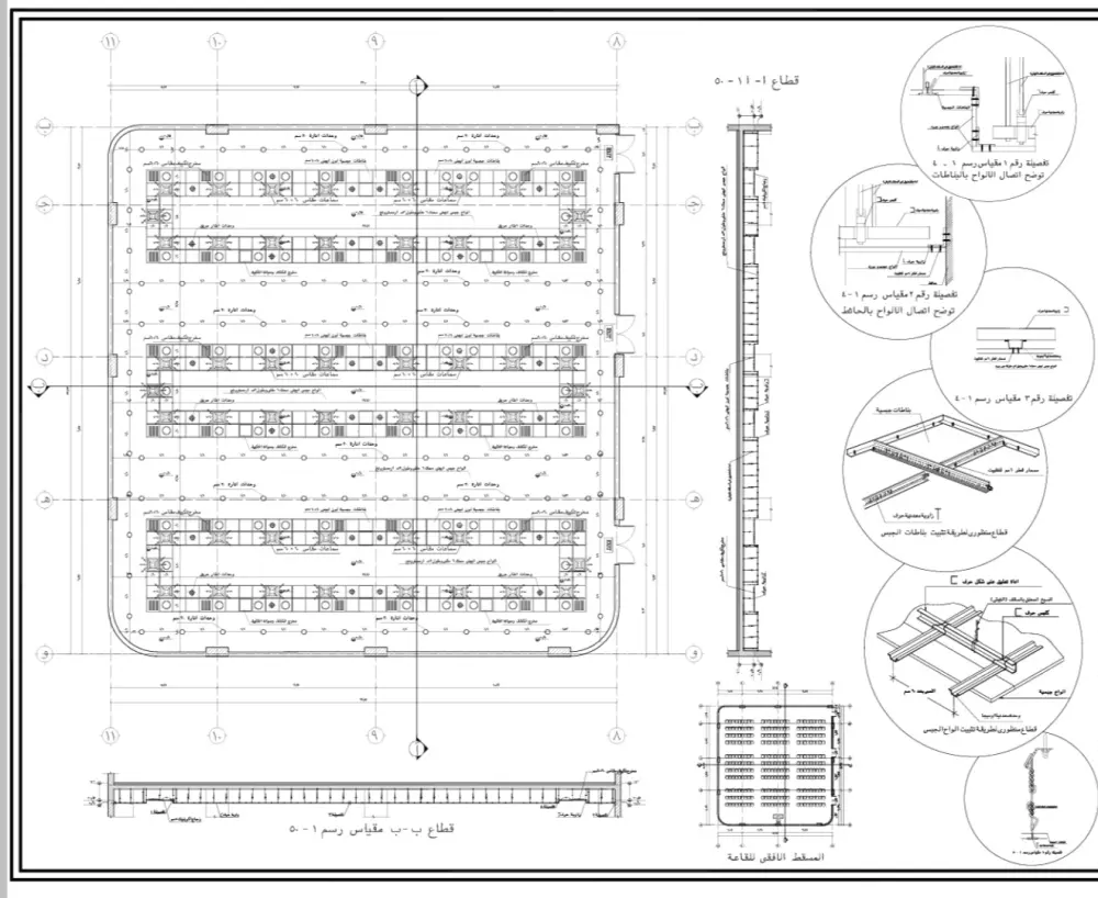
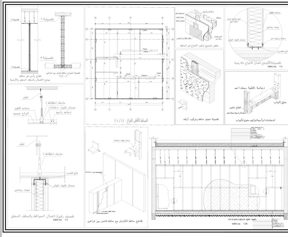
أقوم بتقديم كافة التصميمات التنفيذية التفصيلية لكافة المشاريع المعمارية shop drawings للديكور الداخلي والخارجي وكافة أجزاء المشروع من سقف معلق و تكسيات خارجية ميكانيكية (ألواح ألمنيوم -أو تكسيات زجاجية ) وغيرها من التفاصيل الهندسية التسليم عبارة عن ملفات pdfعالية الجودة قابلة للطباعة . ويتم طلب ملف العمل أو أي صيغ آخرى بالاتفاق سعيدة بالتعامل مع حضراتكم معكم المهندسة آية . يرجى المراسلة في حالة وجود أي استفسار .

شراء الخدمة الآن
شارك
بطاقة الخدمة
التقييمات
سعر الخدمة
100.00 $
مدة التسليم
3 أيام
بائع الخدمة
Aya Adel
Aya Adel
مهندس برمجيات
شراء الخدمة الآن
شارك
مركز المساعدة