شراء الخدمة الآن

رسم وتصميم المخططات المعمارية والرسوم التنفيذية لل10 مترمربع

شراء الخدمة

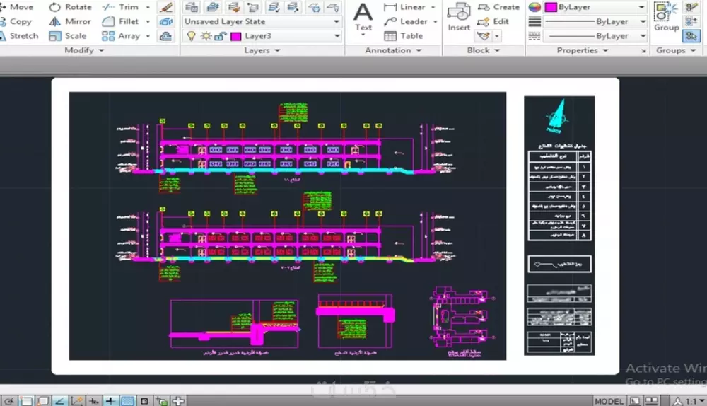
السلام عليكم ورحمة الله وبركاته أقدم لكم من خلال هذه الخدمة تصميم ورسم كافة المخططات والرسوم التنفيذية على برنامج الأوتوكاد سواء مساقط أفقية أو واجهات أو قطاعات تنفيذية (لكل من المباني السكنية والفلل والمباني الإدارية وتجارية وكافة المنشآت بأنواعها ). ● متوفرتصميم رسوم تخطيطية للمدن والمناطق السكنية والمجمعات والمخيمات والنوادي و مخططات الموقع العام لكافة المرافق الحيوية . ● يتم التصميم حسب كود البناء الدولة والمنطقة المتواجد بها المشروع . ● متوفر مخططات متكاملة (معماري وإنشائي وصحي وكهرباء وتكييف ) يقوم بها مجموعة من المهندسين المتخصصين . ● متوفر خدمة تحويل ملفاتpdf أو صور لملفات أوتوكاد . ● يتم تسليم العميل الرسومات بصيغة dwg (ملف أوتوكاد ) أو pdf حسب الاتفاق . ● التعديل على الرسومات مفتوح حتى الوصول للتصميم المناسب للعميل. ◇نعمل على الاستغلال الأمثل للفراغات وابتكار أفكار تصميمة مبدعة لتحقيق أفضل استخدام وتحقيق الراحة للمستخدمين◇ يرجى التواصل معي في حال الاستفسار أو طلب الخدمة.

شراء الخدمة الآن
شارك
بطاقة الخدمة
التقييمات
سعر الخدمة
5.00 $
مدة التسليم
3 أيام
بائع الخدمة
Aya Adel
Aya Adel
مهندس برمجيات
شراء الخدمة الآن
شارك
مركز المساعدة