رسم خرائط معمارية لفيلا في لبنان على برنامج الأوتوكاد رسم خرائط معمارية لفيلا في لبنان على برنامج الأوتوكاد رسم خرائط معمارية لفيلا في لبنان على برنامج الأوتوكاد رسم خرائط معمارية لفيلا في لبنان على برنامج الأوتوكاد رسم خرائط معمارية لفيلا في لبنان على برنامج الأوتوكاد رسم خرائط معمارية لفيلا في لبنان على برنامج الأوتوكاد رسم خرائط معمارية لفيلا في لبنان على برنامج الأوتوكاد رسم خرائط معمارية لفيلا في لبنان على برنامج الأوتوكاد رسم خرائط معمارية لفيلا في لبنان على برنامج الأوتوكاد رسم خرائط معمارية لفيلا في لبنان على برنامج الأوتوكاد رسم خرائط معمارية لفيلا في لبنان على برنامج الأوتوكاد رسم خرائط معمارية لفيلا في لبنان على برنامج الأوتوكاد رسم خرائط معمارية لفيلا في لبنان على برنامج الأوتوكاد رسم خرائط معمارية لفيلا في لبنان على برنامج الأوتوكاد
تفاصيل العمل

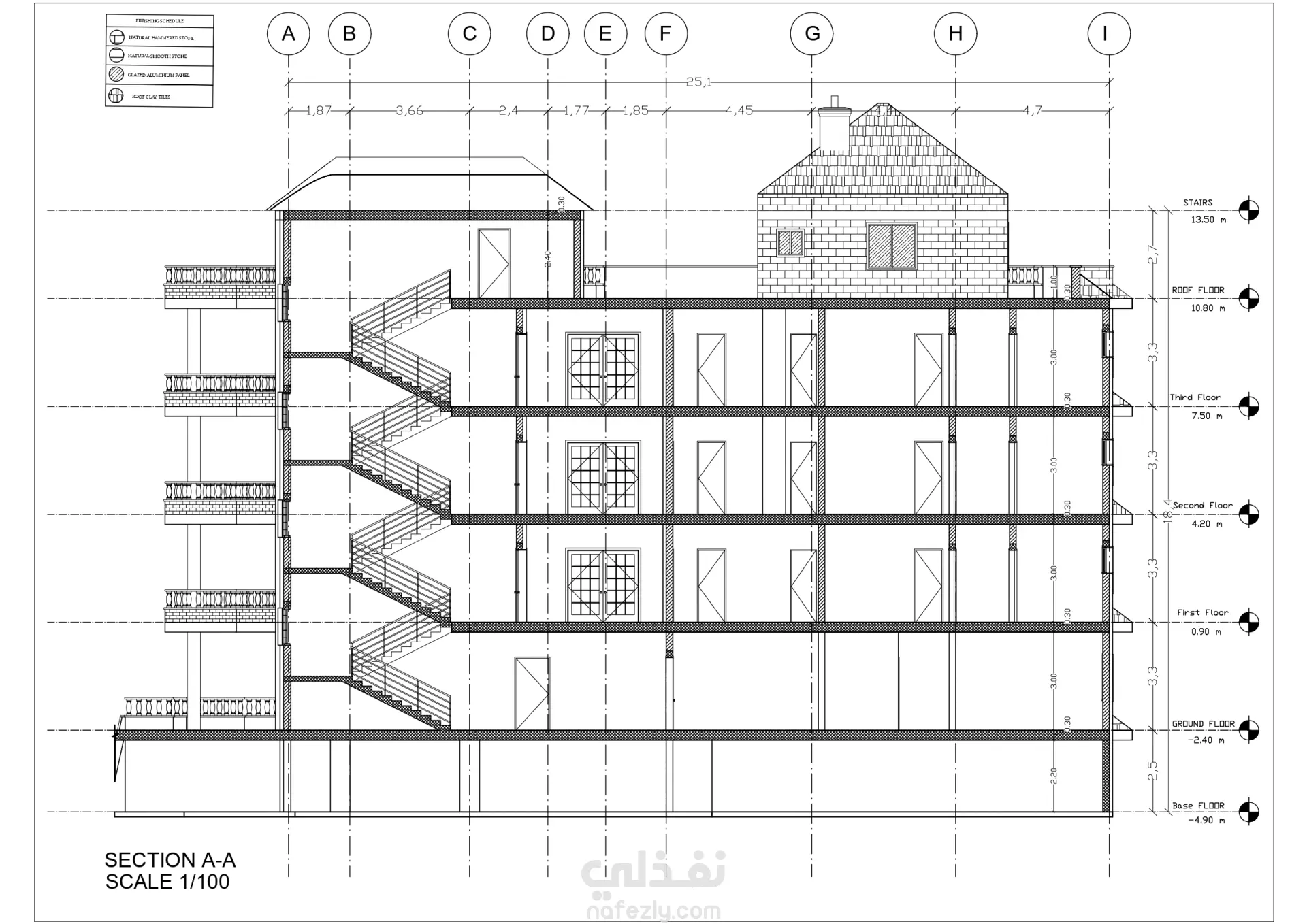
رسم خرائط معمارية كاملة لفيلا في لبنان على برنامج الأوتوكاد (مساقط - واجهات - مقاطع - موقع عام) بجودة عالية ودقة وسرعة في الإنجاز

شارك
بطاقة العمل
تقييم المستقل
تاريخ النشر
منذ 3 سنوات
المشاهدات
1560
المستقل
طلب عمل مماثل
شارك
مركز المساعدة