تصميم مبني المنتدي بالقرية الذكية تصميم مبني المنتدي بالقرية الذكية
تفاصيل العمل

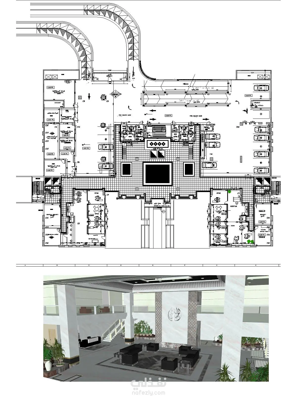
وصف العمل: أقدم خدمة تصميم وإعداد رسومات تنفيذية كاملة للمشروعات المعمارية والإنشائية، تشمل: التصميم المعماري: إعداد المخططات المعمارية التفصيلية مثل (المخططات الطابقية، الواجهات، القطاعات) مع مراعاة كافة المعايير الهندسية والجمالية. التصميم الإنشائي: إعداد الرسومات الإنشائية للمبنى مثل (الأساسات، الأعمدة، الأسطح، الجدران الحاملة)، مع مراعاة تحميل الأحمال ومتطلبات السلامة. الرسومات التنفيذية: إعداد جميع الرسومات اللازمة لتنفيذ المشروع بأعلى دقة، تشمل التفصيلات الدقيقة للموقع والمواد المستخدمة، مما يضمن تنفيذ العمل وفقاً لأعلى معايير الجودة. التنسيق بين التخصصات: التأكد من توافق التصميمات المعمارية مع الإنشائية وكافة الأنظمة الأخرى (الكهرباء، المياه، التكييف، وغيرها). المزايا: خبرة في تنفيذ مشاريع متنوعة. استخدام برامج تصميم متطورة مثل AutoCAD وRevit لضمان الدقة والتوافق. تقديم استشارات فنية ودعم مستمر طوال مرحلة التنفيذ.

شارك
بطاقة العمل
تاريخ النشر
منذ 3 أسابيع
المشاهدات
39
المستقل
طلب عمل مماثل
شارك
مركز المساعدة