تسجيل صوتي
Loading...
×
إرسال التسجيل
إبلاغ
هذا المحتوى مزعج
هذا المحتوى سبام Spam او وهمي
هذا المحتوى مخالف لشروط المنصة
تراجع
إبلاغ
تصفح المشاريع
تصفح المنفذين
تصفح الأعمال
تصفح الخدمات
مجتمع نفذلي
تغيير الوضع
الدليل الإرشادي
الدعم الفني
عرض المزيد
ضمان الحقوق
التسويق بالعمولة
الإسئلة الشائعة
مدونة نفذلي
سياسة الخصوصية
شروط الاستخدام
إضافة مشروع
الخدمات
الأعمال
المشاريع
المنفذين
دخول
حساب جديد
تسجيل
تسجيل دخول
تغيير الوضع
طلب عمل مماثل
تواصل
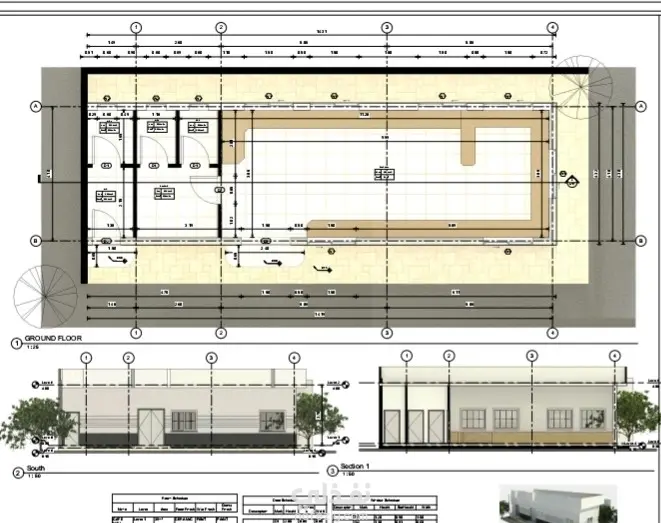
مبنى إدارى بمدينه بدر
الرئيسية
/
الأعمال
/
مبنى إدارى بمدينه بدر
طلب عمل مماثل
تفاصيل العمل
مبنى مكون من دور ارضى عباره عن مطعم ودورات مياه كاستراحه للعاملين
طلب عمل مماثل
مهارات العمل
الفوتوشوب
PDF
تصميم الأفكار
أوتوكاد
إدارة المشاريع
تصميم نماذج 3D
التصميم الداخلي
المزيد
شارك
بطاقة العمل
تاريخ النشر
منذ 3 أشهر
المشاهدات
44
القسم
تصميم وأعمال فنية وإبداعية
المستقل
Rasha Mahmoud
مهندس معمارى
وظفني
طلب عمل مماثل
مهارات العمل
الفوتوشوب
PDF
تصميم الأفكار
أوتوكاد
إدارة المشاريع
تصميم نماذج 3D
التصميم الداخلي
المزيد
شارك
خدمات مقترحة
تصميم غلاف كتاب او رواية - دمج احترافي Photo Manipulation
تصميم وأعمال فنية وإبداعية
سعر الخدمة
50$
تصميم كروت شخصية
تصميم بطاقات أعمال
سعر الخدمة
5$
سوف اصمم لك لوجو (logo) احترافي مقابل 5$ فقط
تصميم الشعارات
سعر الخدمة
5$
تصميم شعار ابداعي واحترافي عالية الجودة
تصميم الشعارات
سعر الخدمة
5$
تصميم بوسترات و إعلانات للسوشيال ميديا مقابل 10$ فقط!!
تصميم البانرات
سعر الخدمة
10$
تصميم إعلان سوشيال ميديا
(7)
تصميم وأعمال فنية وإبداعية
سعر الخدمة
5$
مرحباً أنا هنا للمساعدة
مركز المساعدة
الدليل الإرشادي
الروبوت الذكي
الدعم الفني
إنشاء حساب