تسجيل صوتي
Loading...
×
إرسال التسجيل
إبلاغ
هذا المحتوى مزعج
هذا المحتوى سبام Spam او وهمي
هذا المحتوى مخالف لشروط المنصة
تراجع
إبلاغ
تصفح المشاريع
تصفح المنفذين
تصفح الأعمال
تصفح الخدمات
مجتمع نفذلي
تغيير الوضع
الدليل الإرشادي
الدعم الفني
عرض المزيد
ضمان الحقوق
التسويق بالعمولة
الإسئلة الشائعة
مدونة نفذلي
سياسة الخصوصية
شروط الاستخدام
إضافة مشروع
الخدمات
الأعمال
المشاريع
المنفذين
دخول
حساب جديد
تسجيل
تسجيل دخول
تغيير الوضع
طلب عمل مماثل
تواصل
تحويل ملف pdf الي ملف Cad
الرئيسية
/
الأعمال
/
تحويل ملف pdf الي ملف Cad
طلب عمل مماثل
تفاصيل العمل
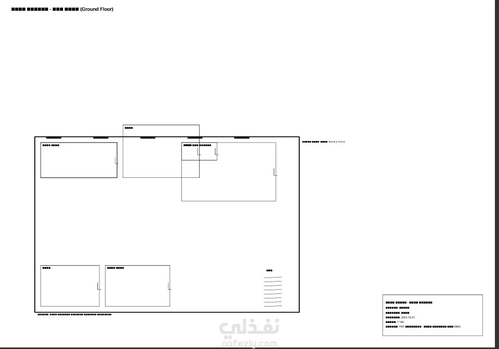
بفضل الله قمت بي تحويل ماف pdf به ريومات معمارية الي ملف autocad
طلب عمل مماثل
مهارات العمل
أوتوكاد
PDF
البناء المعماري
شارك
بطاقة العمل
تاريخ النشر
منذ شهر
المشاهدات
41
القسم
تصميم وأعمال فنية وإبداعية
المستقل
Alaa Abduallah
متخصص Gis
وظفني
طلب عمل مماثل
مهارات العمل
أوتوكاد
PDF
البناء المعماري
شارك
خدمات مقترحة
تصميم تجربة وواجهة مستخدم احترافية للوحات التحكم | UX/UI Design Dashboard
تصميم وأعمال فنية وإبداعية
سعر الخدمة
250$
أصمم لك اعلان لمنتجك مقابل 10$
تصميم وأعمال فنية وإبداعية
سعر الخدمة
10$
تصميم سوشيال ميديا احترافي
تصميم وأعمال فنية وإبداعية
سعر الخدمة
5$
خدمة التصميم الشاملة - أصمم لك ما تريد
تصميم وأعمال فنية وإبداعية
سعر الخدمة
5$
فاتورة مبيعات احترافية لمحلك او شركتك professional invoice
تصميم وأعمال فنية وإبداعية
سعر الخدمة
5$
داشبورد Dashboard لوحات تفاعلية على برنامج Power BI
تصميم وأعمال فنية وإبداعية
سعر الخدمة
5$
مرحباً أنا هنا للمساعدة
مركز المساعدة
الدليل الإرشادي
الروبوت الذكي
الدعم الفني
إنشاء حساب