اعداد مخططات تنفيذية دقيقة (شوب دروينج) باستخدام برنامج ASD اعداد مخططات تنفيذية دقيقة (شوب دروينج) باستخدام برنامج ASD اعداد مخططات تنفيذية دقيقة (شوب دروينج) باستخدام برنامج ASD اعداد مخططات تنفيذية دقيقة (شوب دروينج) باستخدام برنامج ASD اعداد مخططات تنفيذية دقيقة (شوب دروينج) باستخدام برنامج ASD اعداد مخططات تنفيذية دقيقة (شوب دروينج) باستخدام برنامج ASD اعداد مخططات تنفيذية دقيقة (شوب دروينج) باستخدام برنامج ASD اعداد مخططات تنفيذية دقيقة (شوب دروينج) باستخدام برنامج ASD اعداد مخططات تنفيذية دقيقة (شوب دروينج) باستخدام برنامج ASD
تفاصيل العمل

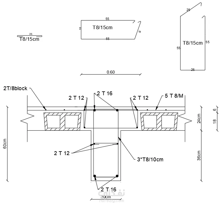
عملت على اعداد مخططات تنفيذية لمشروع سكني تشمل مخططات الاعمدة والجدران القصية و الاساسات و تفاصيل التسليح . استخدمتASD مع الAutoCAD بدقة عالية لتنسيق الابعاد والرموز والتسميات حسب الكودات العالمية و معايير المكتب الهندسي . تمت مراجعة العمل من قبل مهندسين مشرفين و تم اعتماده كجزء من المخططات النهائية للمشروع .

مهارات العمل
شارك
بطاقة العمل
تاريخ النشر
منذ 3 أسابيع
المشاهدات
18
القسم
المستقل
طلب عمل مماثل
مهارات العمل
شارك
مركز المساعدة