رسم المخططات المعمارية باستخدام الاتوكاد رسم المخططات المعمارية باستخدام الاتوكاد رسم المخططات المعمارية باستخدام الاتوكاد رسم المخططات المعمارية باستخدام الاتوكاد رسم المخططات المعمارية باستخدام الاتوكاد
تفاصيل العمل

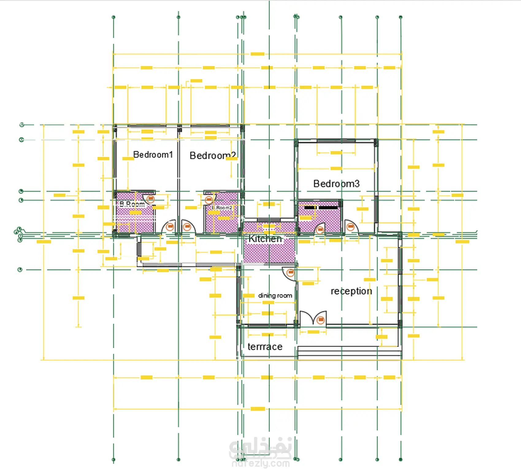
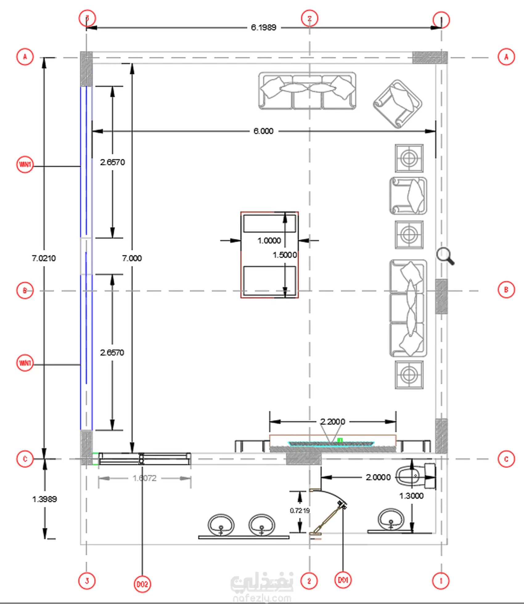
رسم المخططات المعمارية باستخدام AutoCAD يمكنك إرسال أفكارك أو رسوماتك اليدوية أو ملفات PDF، وسأقوم بتحويلها إلى مخططات معمارية دقيقة باستخدام AutoCAD . مع إضافة الأبعاد والتسميات وفقًا للاساسيات الهندسية. بمجرد تزويدي بالتفاصيل، سأكون جاهزة للعمل مباشرة على AutoCAD يتم تسليم المخططات بصيغة واحدة فقط: DWG (AutoCAD) أو PDF أو JPG. الرسم فقط، وليس التصميم – أي أن المخطط الأساسي يكون متوفرًا لديك، وأنا أقوم برسمه . يتم تنفيذ كل 45 مترًا مربعًا مقابل سعر الخدمة. التعديلات متاحة حتى 3 مرات كحد أقصى، بشرط ألا يتم تغيير المخطط بالكامل.

شارك
بطاقة العمل
تاريخ النشر
منذ 5 أشهر
المشاهدات
69
المستقل
Rawan Maher
Rawan Maher
مهندسة معمارية
طلب عمل مماثل
شارك
مركز المساعدة